€ 550.000 k.k.
Omschrijving
Op Bossebaan 59 woont u royaal, modern en met alle comfort van nu. Deze uitgebouwde en modern afgewerkte woning combineert een lichte en sfeervolle woonkamer, een moderne leefkeuken, vijf slaapkamers en een tuin met brede overkapping. Alles is tot in de puntjes verzorgd en ingericht om heerlijk te kunnen leven.
Een groen welkom
De Bossebaan is een prachtige groene straat met hoge bomen! De royale voortuin met een variatie aan planten en struiken trekt deze groene omgeving door. Al bij aankomst voelt u de verzorgde en warme sfeer die u verderop in het huis zult terugvinden.
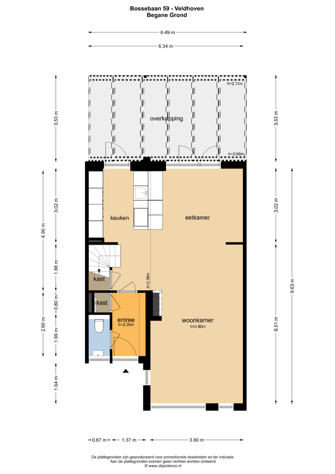
Een verzorgt entree
In de hal vindt u de meterkast met praktische bergruimte en slimme meters. Het moderne toilet is geheel betegeld en voorzien van een wandcloset, wastafelmeubel, inbouwspots en een luchtrooster. Vanuit hier stapt u de woonkamer binnen.
Sfeervolle living
De uitgebouwde woonkamer is licht, ruim en sfeervol. Meerdere ramen aan de voor- en zijkant met kunststof kozijnen zorgen voor een fijne lichtinval en de open haard vormt een stijlvol middelpunt. De wanden en plafonds zijn glad gestuct en voorzien van inbouwspots. Op de vloer ligt een tijdloze keramische vloer met hieronder vloerverwarming. Aan de achterzijde geven openslaande deuren toegang tot de tuin en verbindt u binnen moeiteloos met buiten. De trap naar de verdieping is aan de linkerzijde gelegen en biedt eronder extra bergruimte. Hier vindt u tevens de verdeler van de vloerverwarming.
Koken in stijl
Aan de achterzijde van de woning ligt de moderne keuken: matwit, strak en voorzien van een royaal kook- en spoeleiland met donker werkblad. Hier kookt u op een inductieplaat met geïntegreerde afzuiging en bent u altijd voorzien van kokend water dankzij de Quooker. Terwijl u kookt, schuiven familie of vrienden gezellig aan bij het bargedeelte. De praktische kastenwand herbergt een oven, combi-oven, vaatwasser, koelkast en vriezer. Ook aan een tv-aansluiting is gedacht: dit is echt een keuken waar alles samenkomt.
1e Verdieping
Op de eerste verdieping loopt een laminaatvloer door in alle ruimtes, wat een rustig geheel geeft. Ook zijn er schuifdeuren geplaatst die de trappen afsluiten. U vindt hier drie slaapkamers, allemaal met horren en kunststof kantelkiepramen. De ruime ouderslaapkamer aan de voorzijde is een plaatje op zich, met een walk-in closet met verlichting. De luxe badkamer maakt de verdieping compleet met een ligbad, douchecabine, toilet, wastafelmeubel met spiegel en verlichting, kantelkiepraam met hor en inbouwspots.
2e Verdieping
Via de vaste trap bereikt u de tweede verdieping. De voorzolder aan de voorzijde is licht door de aanwezigheid van een kantelkiepraam. Vanaf de voorzolder bereikt u de vierde kamer, een fijne ruimte die flexibel gebruikt kan worden als werk-, hobby- of slaapkamer. Deze kamer beschikt over twee dakramen, een vinylvloer en bergruimte onder de dakschuinte over de volle lengte.
Aan de rechterzijde van de voorzolder ligt de wasruimte, met aansluitingen voor wasmachine en droger en de cv-installatie. Vanuit deze wasruimte bereikt u de vijfde slaapkamer aan de achterzijde. Deze lichte kamer heeft brede ramen, een laminaatvloer en inbouwspots.
Buitenleven in eigen tuin
De achtertuin is een plek om écht te genieten. Onder de brede overkapping met inbouwspots creëert u eenvoudig een knusse loungehoek of plaatst u een lange eettafel om heerlijk buiten te eten. Het kunstgras en de borders zorgen voor een frisse, onderhoudsvriendelijke uitstraling. Verder vindt u er een buitenkraan met antidruppelsysteem, een stenen berging met elektra en een achterom naar de brandgang. Zelfs aan een aparte plek voor de kliko’s is gedacht.
Praktisch en compleet
* Bouwjaar 1978
* Begane grond geheel gemoderniseerd en uitgebouwd in 2020
* Energielabel B
* Kunststof kozijnen met HR++ glas en dauerlüftung, m.u.v. 1 slaapkamer op de zolder
* Vloerverwarming en natuurstenen vloer op de begane grond
* 5 slaapkamers, dakterras en veel bergruimte
* Prachtig gelegen tegenover groenstrook en op loopafstand van park Vogelzang
* Bushalte op een paar meter lopen
* Op loopafstand van basisschool en het Citycentrum Veldhoven met alle denkbare voorzieningen
* Fietsafstand ASML en MMC
* Gunstig gelegen t.o.v. diverse uitvalswegen